Idea Reality
Menu Oblíbené
Moderní horský apartmán s výhledem na Špičák, 98 m2
Nemovitost ID 770
Podlaží 1
Balkon / Lodžie Ano
Výtah Ne
Parkování Ano
Vlastnictví osobní
PENB B
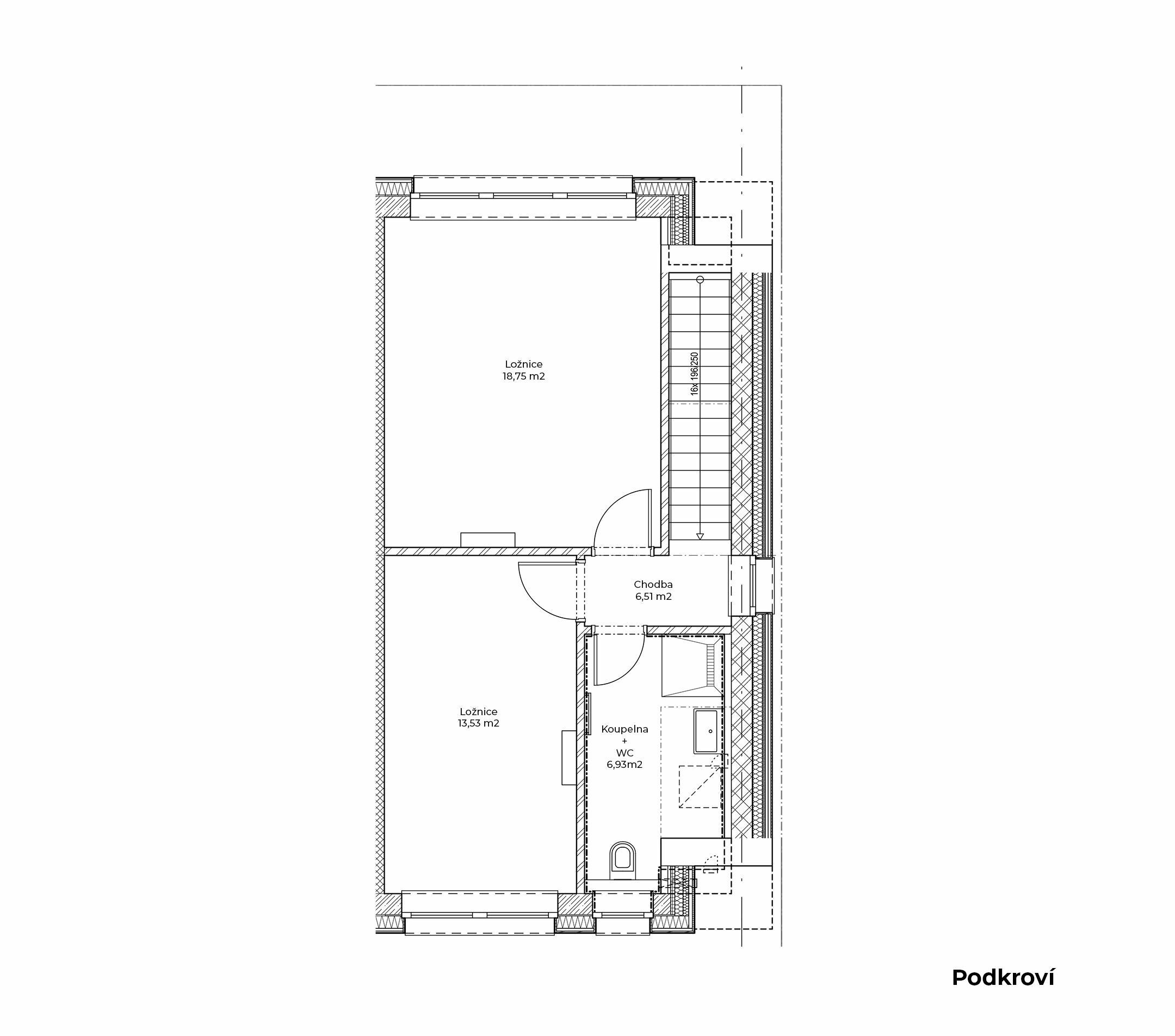
K prodeji nabízíme zkolaudovaný mezonetový krajní apartmán C6 o dispozici 3+kk (98,3 m2) s balkonem (7,2 m2) a vlastní kolárnou (17,4 m2) v nově vzniklém Resortu Alpalouka ve vyhledávané lokalitě na Špičáku v Železné Rudě. Apartmán je umístěn v energeticky velmi úsporné novostavbě (třída B). Interiér je rozdělen na část společenskou v 1. NP a klidovou v podkroví. Většinu společenské části zaujímá obývací pokoj spojený s kuchyňským koutem. Velká okna a posuvné dveře krásně prosvětlí obývací pokoj a zároveň umožňují vstup na balkon. Společenská část je dále členěna na předsíň a koupelnu s WC. Po schodišti vedoucím z obývacího pokoje lze vystoupat do podkroví, kde se nachází dva neprůchozí pokoje a druhá koupelna s WC. Apartmán je dokončen v nadstandardním provedení, které zahrnuje kvalitní plastohliníková okna a posuvné dveře typu HS portál s izolačním trojsklem, venkovní žaluzie, podlahové vytápění, v koupelnách navíc s topnými žebříky, nástěnné klimatizace ve všech obytných místnostech, elektrický zásobníkový ohřívač vody, zabezpečovací zařízení JABLOTRON s aplikací pro dálkové ovládání alarmu i celé domácnosti (ovládání klimatizace, topení či venkovních žaluzií), vnitřní schodiště s masivními dřevěnými nášlapy, interiérové dveře bílé s obložkovými zárubněmi, lepené vinylové podlahy v kombinaci s keramickou dlažbou, obklady či sanitu od renomovaných výrobců. Resort je oplocený, na vjezdu s automatickou bránou, napojený na zpevněnou obecní komunikaci a chráněn kamerovým systém. Na pozemku je také dětské hřiště a ohniště. Otopný systém je doplněn fotovoltaickými panely na střechách obou budov. Takto získanou elektrickou energii mohou společně využívat obyvatelé resortu pro provoz svých domácností. Výhodou je také umístění v Chráněné krajinné oblasti Šumavy a blízkosti Národního parku Šumava s ojedinělými krajinnými prvky včetně ledovcových jezer, vodopádů, pramenišť řek či výhledů z nejvyšších vrcholů. Především oblast Špičák je oblíbeným místem pro aktivní odpočinek. Množství sportovních středisek, turistických, cyklistických a běžeckých tras je zárukou širokého sportovního vyžití. Konečná cena vč. 21% DPH, provize RK, právního servisu a advokátní úschovy kupní ceny činí 13.990.000 Kč. K bytu je nutné dokoupit dvě krytá parkovací stání za cenu 690.000 Kč včetně 21% DPH. Možnost odpočtu 21% DPH. Pro bližší informace či domluvení prohlídky volejte na uvedený mobilní telefon. Vybavení apartmánu (vč. kuchyňské linky) je možné odkoupit za zvýhodněnou cenu. Pro zjištění rozměrů místností a objektů v prostoru využijte možnost měření ve virtuální prohlídce pomocí ikony pravítka v levém dolním rohu.

Arrow right purple

Fotografie nemovitostí

Prodej bytu 3+kk, 98 m2

Poloha
nemovitosti

ZvětšitZvětšit mapu Arrow right white

Adresa nemovitosti

Železná Ruda - Špičák

Doporučujeme z naší nabídky

Další nemovitosti

Byt 3+1 v Plzni na Doubravce, 74 m2

Prodej bytu 3+1 74 m2

Masarykova, Plzeň - Doubravka

5.290.000 Kč

Oblíbené
Prostorný byt 3+kk s parkovacím stáním, 87 m2

Prodej bytu 3+kk 87 m2

U Trati, Karlovy Vary - Bohatice

4.760.000 Kč

Oblíbené
Byt 2+1 v podhůří Šumavy,, 58 m2

Prodej bytu 2+1 58 m2

Velhartice - Velhartice

1.380.000 Kč

Oblíbené
Prostorný 2+kk s balkonem v úsporné novostavbě, 61 m2

Prodej bytu 2+kk 61 m2

Na Jíkalce, Plzeň - Jižní Předměstí

6.190.000 Kč

Oblíbené
Moderní horský apartmán s výhledem na Špičák, 49 m2

Prodej bytu 1+kk 49 m2

Železná Ruda - Špičák

5.690.000 Kč

Oblíbené
Moderní horský apartmán s výhledem na Špičák, 100 m2

Prodej bytu 3+kk 100 m2

Železná Ruda - Špičák

13.890.000 Kč

Oblíbené
Moderní horský apartmán s výhledem na Špičák, 98 m2

Prodej bytu 3+kk 98 m2

Železná Ruda - Špičák

12.290.000 Kč

Oblíbené
Moderní horský apartmán s výhledem na Špičák, 49 m2

Prodej bytu 1+kk 49 m2

Železná Ruda - Špičák

6.890.000 Kč

Oblíbené

Pošlete telefon nebo email. Ozveme se.

Chcete prodat nebo pronajmout nemovitost?

Zanechat kontakt Zanechat kontakt
Zanechte nám číslo