Idea Reality
Menu Oblíbené
Prostorný 2+kk s balkonem v úsporné novostavbě, 61 m2
Adéla Hoblíková

Adéla Hoblíková

Realitní makléř a jednatel

Nemovitost ID 1081
Podlaží 4
Balkon / Lodžie Ne
Výtah Ano
Parkování Ne
Vlastnictví osobní
PENB C
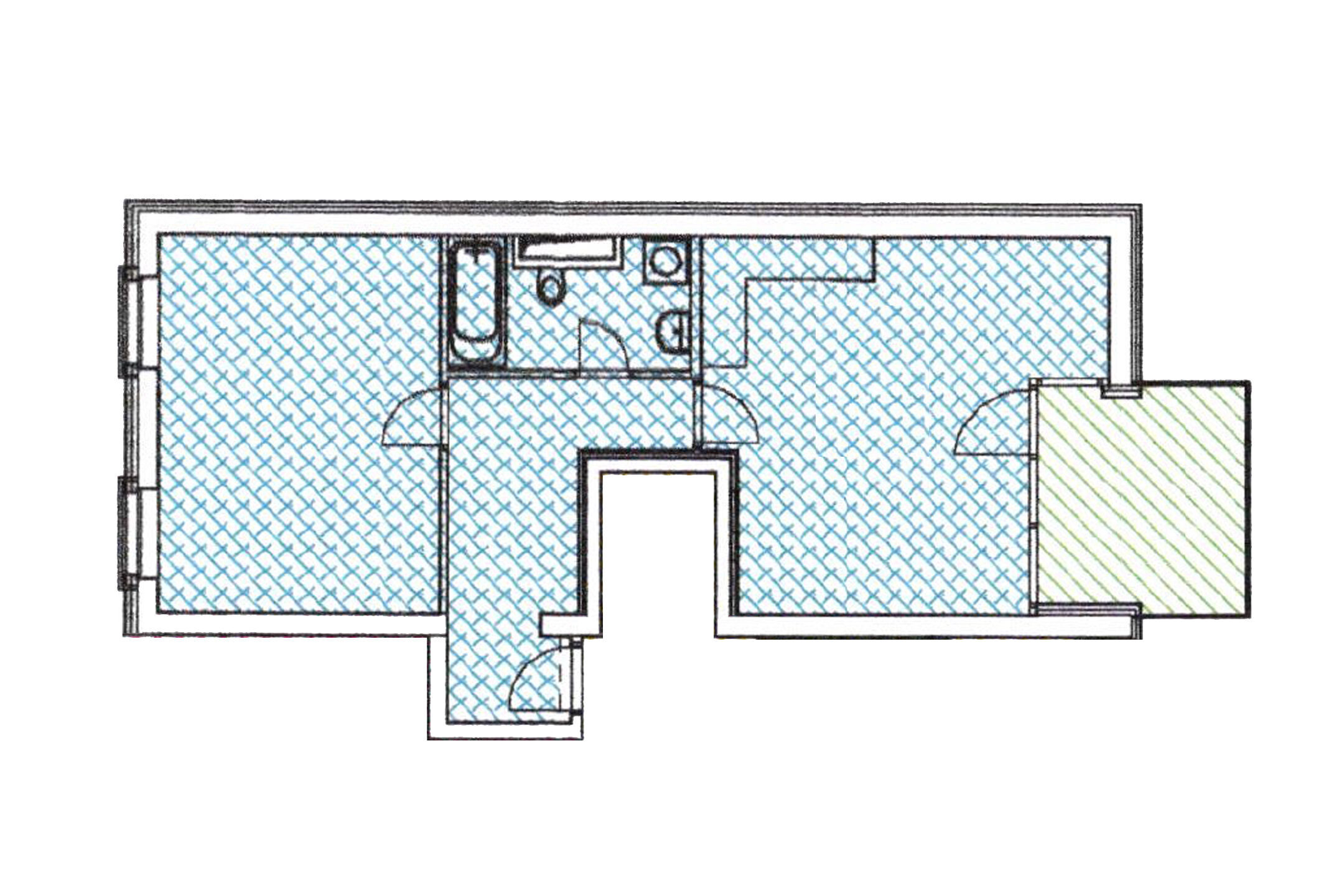
K prodeji nabízíme nadstandardně prostorný byt 2+kk (61 m2) s balkonem (9 m2) v blízkosti centra města Plzně na Jižním Předměstí, ulice Na Jíkalce. Bytová jednotka je situována do 4. nadzemního podlaží (z celkových 6) energeticky úsporné novostavby (třída C). Dispozice bytu je velmi praktická. Z předsíně se samostatně vchází do všech místností, a to do obývacího pokoje s kuchyňským koutem, ložnice a do koupelny s toaletou. Dominantou obývací části je velké francouzské okno, které prostor příjemně prosvětluje a zároveň umožňuje vstup na jižně orientovaný balkon. Ten je vybaven venkovním osvětlením a elektrickou zásuvkou. Součástí vybavení bytu je moderní kuchyňská linka s vestavěnými spotřebiči, mezi které patří elektrická trouba, sklokeramická varná deska, digestoř, myčka nádobí a lednice s mrazákem. Dále je byt vybaven také koupelnovým nábytkem, kompletním osvětlením a domácím telefonem. Vytápění je ústřední (Plzeňská teplárenská), totéž dodávka teplé vody. Na vše jsou samostatná měřidla. K bytu náleží zděný sklep (1 m2) umístěný v suterénu domu. Lokalita nemovitosti se vyznačuje vynikající dostupností do centra města, které je vzdáleno přibližně 15 minut chůze nebo tři zastávky tramvají č. 2. V bezprostřední blízkosti se nachází také oblíbené stezky pro pěší a cyklisty podél řeky Mže, které nabízejí ideální možnosti pro procházky či výlety na kole. Výhodou je rovněž rychlé napojení na dálnici D5, které zajišťuje pohodlné spojení s širším regionem. Konečná cena bytu včetně provize RK, kompletního právního servisu a advokátní úschovy kupní ceny činí 6.190.000 Kč. Byt je pronajatý na dobu určitou 30.11.2025. Informace o výnosu z pronájmu jsou na vyžádání u makléře. Pro bližší informace či domluvení prohlídky volejte na uvedený mobilní telefon.

Arrow right purple

Fotografie nemovitostí

Prodej bytu 2+kk, 61 m2

Poloha
nemovitosti

ZvětšitZvětšit mapu Arrow right white

Adresa nemovitosti

Na Jíkalce, Plzeň - Jižní Předměstí

Doporučujeme z naší nabídky

Další nemovitosti

Byt 3+1 v Plzni na Doubravce, 74 m2

Prodej bytu 3+1 74 m2

Masarykova, Plzeň - Doubravka

5.290.000 Kč

Oblíbené
Prostorný byt 3+kk s parkovacím stáním, 87 m2

Prodej bytu 3+kk 87 m2

U Trati, Karlovy Vary - Bohatice

4.760.000 Kč

Oblíbené
Byt 2+1 v podhůří Šumavy,, 58 m2

Prodej bytu 2+1 58 m2

Velhartice - Velhartice

1.380.000 Kč

Oblíbené
Moderní horský apartmán s výhledem na Špičák, 49 m2

Prodej bytu 1+kk 49 m2

Železná Ruda - Špičák

5.690.000 Kč

Oblíbené
Moderní horský apartmán s výhledem na Špičák, 100 m2

Prodej bytu 3+kk 100 m2

Železná Ruda - Špičák

13.890.000 Kč

Oblíbené
Moderní horský apartmán s výhledem na Špičák, 98 m2

Prodej bytu 3+kk 98 m2

Železná Ruda - Špičák

13.990.000 Kč

Oblíbené
Moderní horský apartmán s výhledem na Špičák, 98 m2

Prodej bytu 3+kk 98 m2

Železná Ruda - Špičák

12.290.000 Kč

Oblíbené
Moderní horský apartmán s výhledem na Špičák, 49 m2

Prodej bytu 1+kk 49 m2

Železná Ruda - Špičák

6.890.000 Kč

Oblíbené

Pošlete telefon nebo email. Ozveme se.

Chcete prodat nebo pronajmout nemovitost?

Zanechat kontakt Zanechat kontakt
Zanechte nám číslo