Idea Reality
Menu Oblíbené
Novostavba rodinného domu v Nezvěsticích (energetická třída A), 135 m2
Adéla Hoblíková

Adéla Hoblíková

Realitní makléř a jednatel

Nemovitost ID 1138
Pokoje 5 a více pokojů
Stavba cihlová
Užitná plocha 135 m2
Pozemek 610 m2
Parkování Ano
PENB A
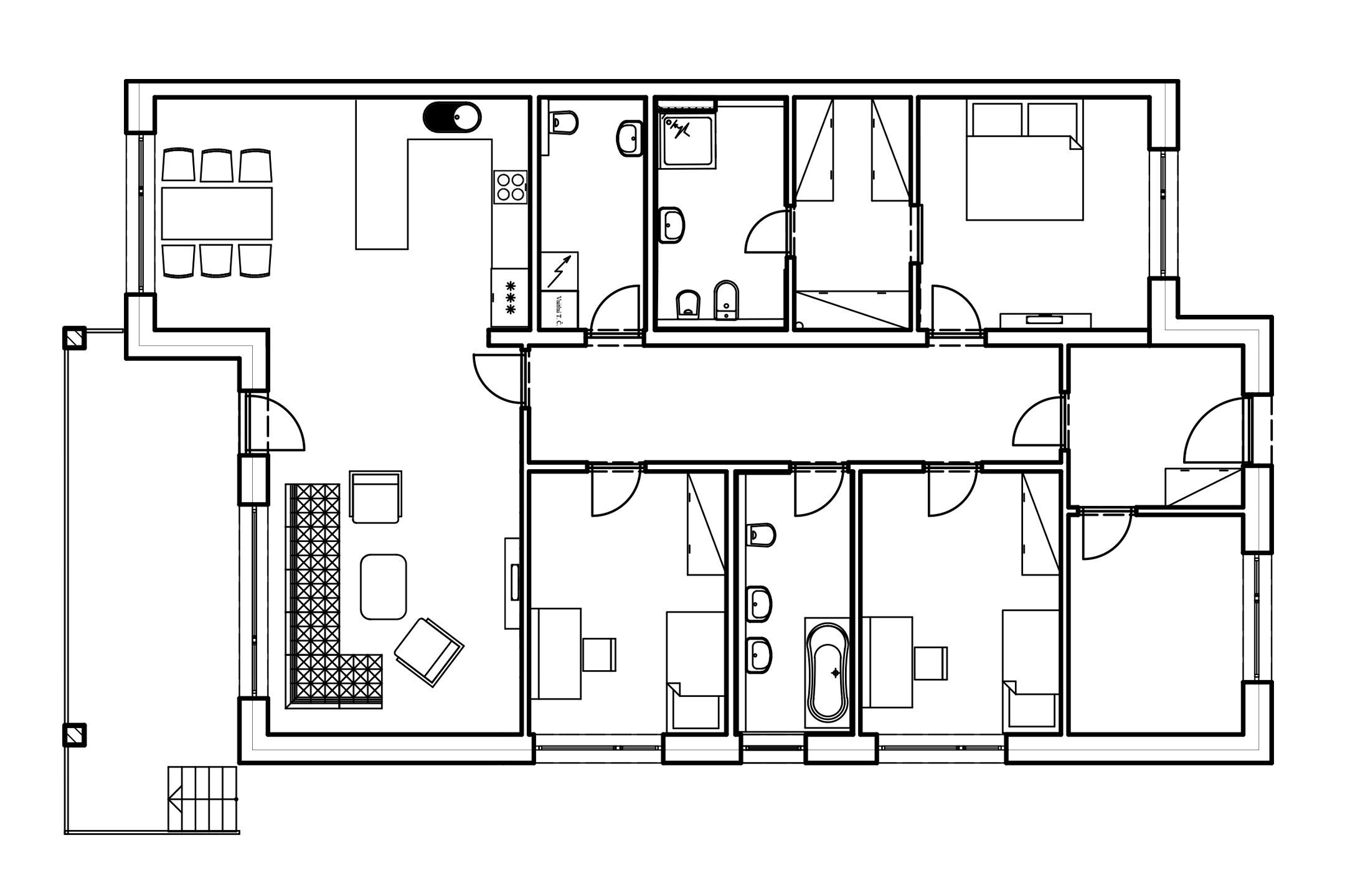
K prodeji nabízíme novostavbu energeticky mimořádně úsporného rodinného domu (třída “A“) o dispozici 5+kk (135 m2) s krytou terasou (20 m2) v Nezvěsticích, v části Malá Strana. Dům se nachází v nové rezidenční lokalitě „Na Vartě“, která navazuje na stávající rodinnou zástavbu. Jedná se o klidné bydlení s velmi dobrou občanskou vybaveností, výbornou dostupností Plzně a širokými rekreačními možnostmi v okolí. Díky energetické třídě „A“ můžete navíc u některých bank získat výhodnější podmínky hypotečního financování, například snížení úrokové sazby až o 0,2 %. Rodinný dům z keramického zdiva s kvalitní tepelnou izolací bude dokončen v nadstandardním provedení, které bude zahrnovat kompletní vnitřní rozvody a instalace, plastová okna a dveře s izolačním trojsklem, teplovodní podlahové vytápění s regulací v každé místnosti, interiérové dveře se zárubněmi, vinylové podlahy v kombinaci s keramickou dlažbou, obklady a sanita od renomovaných výrobců. Připraveny jsou také rozvody pro kuchyňskou linku, klimatizaci, venkovní žaluzie i fotovoltaickou elektrárnu. Vytápění i ohřev vody zajistí tepelné čerpadlo Daikin Altherma 3 R, které garantuje vysoký komfort při velmi nízkých provozních nákladech. Interiér domu je řešen prakticky. Z centrální chodby uprostřed objektu se vstupuje do obývacího pokoje s kuchyňským koutem a jídelnou, dvou dětských pokojů, pracovny a hlavní ložnice. Hlavní ložnice disponuje vlastní šatnou a koupelnou přístupnou pouze přes ložnici. Z centrální chodby je dále přístupná druhá koupelna a technická místnost určená pro tepelné čerpadlo, pračku a sušičku. Z obývacího pokoje je zajištěn přímý výstup na terasu. Dům je částečně podsklepený. Sklep (39 m2) je přístupný ze zahrady. Dům je napojen na elektřinu, vodovod i kanalizaci. Pozemek bude kompletně oplocený, vjezd bude řešen automatickou bránou a vstup vrátky s elektrickým zámkem. Součástí pozemku bude také zpevněná plocha pro parkování dvou automobilů. Přístup je zajištěn z veřejné obecní komunikace. Obec nabízí veškerou potřebnou občanskou vybavenost včetně mateřské školy, základní školy s 1. a 2. stupněm, školní družiny, zdravotního střediska s praktickým i dětským lékařem, pobočky České pošty i supermarketu. Dopravní dostupnost je výborná díky pravidelnému vlakovému i autobusovému spojení. Velkou výhodou je přímé regionální vlakové spojení s Plzní s možnosti přestupu na zastávkách mimo hlavním plzeňském nádraží (např. Slovany, Jižní Předměstí, Zadní Skvrňany apod.). Velmi dobré je také silniční spojení, které dále zrychlí nový obchvat Losiné, jenž výrazně urychlí cesty do Plzně i napojení na dálnici D5. Výstavbu zajistila společnost BUILDING PLZEŇ, s.r.o. s mnoha letými zkušenostmi s výstavbou rodinných a bytových domů. Konečná cena včetně provize RK, kompletního právního servisu a advokátní úschovy kupní ceny činí 11.587.000 Kč. K nastěhování 4/2026. Případnou hypotéku vám zdarma zajistíme. Pro bližší informace či domluvení prohlídky volejte na uvedený mobilní telefon.

Arrow right purple

Fotografie nemovitostí

Prodej rodinného domu, 135 m2

Poloha
nemovitosti

ZvětšitZvětšit mapu Arrow right white

Adresa nemovitosti

Nezvěstice - Nezvěstice

Doporučujeme z naší nabídky

Další nemovitosti

Rodinný dům s hospodářskými stavbami v Horšově, 120 m2

Prodej rodinného domu 120 m2

Horšovský Týn - Horšov

5.390.000 Kč

Oblíbené
Prostorný rodinný dům se zahradou v Zdemyslicích, 200 m2

Prodej rodinného domu 200 m2

Zdemyslice - Zdemyslice

5.490.000 Kč

Oblíbené
Rodinný dům v centru Blovic, 100 m2

Prodej rodinného domu 100 m2

Bělohrobského, Blovice - Blovice

1.890.000 Kč

Oblíbené
Chalupa v autentickém prostředí Šumavy, 205 m2

Prodej chalupy 205 m2

Rejštejn - Svojše

5.900.000 Kč

Oblíbené
Zrekonstruovaný byt 1+1, 31 m2

Pronájem bytu 1+1 31 m2

V Rybníčkách, Tlučná - Tlučná

8.500 Kč

Oblíbené
Moderní byt 2+kk s lodžií a parkovacím stáním, 49 m2

Pronájem bytu 2+kk 49 m2

Sladová, Plzeň - Východní Předměstí

16.900 Kč

Oblíbené
Klimatizovaný ateliér, 91 m2

Pronájem obchodního prostoru 91 m2

Habrmannovo náměstí, Plzeň - Doubravka

14.500 Kč

Oblíbené
Byt 1+1 s parkovacím stáním, 48 m2

Pronájem bytu 1+1 48 m2

Úslavská, Plzeň - Východní Předměstí

12.000 Kč

Oblíbené

Pošlete telefon nebo email. Ozveme se.

Chcete prodat nebo pronajmout nemovitost?

Zanechat kontakt Zanechat kontakt
Zanechte nám číslo